Maison Traditionnelle - Tradi8

Plan maison 5 pièces 4 chambres Surface maison 122 m2

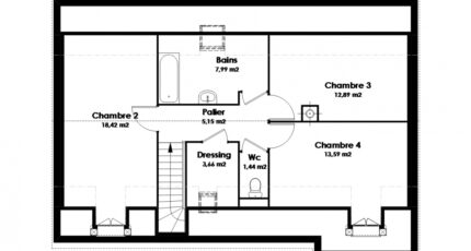
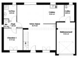
Maison Stéphanie vous propose cette maison traditionnelle offrant 1 chambre au RDC, 3 chambres à l'étage avec 1 dressing et une belle cuisine ouverte sur salon séjour.
Le stationnement y est intégré pour une bénéficier d'une maison fonctionnelle et esthétique.

Construire ce modèle ?

    * Champs obligatoires

    Vos informations sont traitées par HEXAOM et transmises à un conseiller commercial qui vous contactera afin de répondre à votre demande. Les plans et images présentés sur notre site sont la propriété d’HEXAOM et ne peuvent pas être reproduits sans son accord. Pour retrouver notre politique de protection des données personnelles et exercer vos droits conformément à la « loi informatique et liberté » cliquez-ici.