Maison Traditionnelle - Tradi6

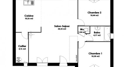
Plan maison 6 pièces 2 chambres Surface maison 75 à 116 m2

Notre architecte a imaginé pour vous une maison idéale pour un premier achat.
Ce modèle présente 2 chambres, une salle de bain, un vaste salon / séjour.
Maison Stéphanie vous propose un aménagement des combles.
Idéal petit budget ou premier achat, ce pavillon vous offre la possibilité d'évoluer au sein de votre maison dans un soucis de confort et d'agrandissement.

Construire ce modèle ?

    * Champs obligatoires

    Vos informations sont traitées par HEXAOM et transmises à un conseiller commercial qui vous contactera afin de répondre à votre demande. Les plans et images présentés sur notre site sont la propriété d’HEXAOM et ne peuvent pas être reproduits sans son accord. Pour retrouver notre politique de protection des données personnelles et exercer vos droits conformément à la « loi informatique et liberté » cliquez-ici.