Maison Traditionnelle - Tradi5

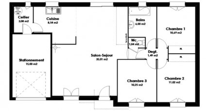
Plan maison 7 pièces 3 chambres Surface maison 87 à 143 m2

Maison Stéphanie a pensé pour vous une maison familiale avec de beaux espaces, du rangement. Une maison qui peut évoluer en fonction de vos projets futurs.
Cette maison vous offre trois belles chambres, un salon-séjour avec cuisine ouverte et un garage intégré.
Évolutive, elle vous permet de faire un bureau, d'autres chambres ou des espaces de vie supplémentaire à l'étage dans la partie des combles aménageables d'une surface de plus de 50m².

Construire ce modèle ?

    * Champs obligatoires

    Vos informations sont traitées par HEXAOM et transmises à un conseiller commercial qui vous contactera afin de répondre à votre demande. Les plans et images présentés sur notre site sont la propriété d’HEXAOM et ne peuvent pas être reproduits sans son accord. Pour retrouver notre politique de protection des données personnelles et exercer vos droits conformément à la « loi informatique et liberté » cliquez-ici.