Maison Traditionnelle - Tradi4

Plan maison 5 pièces Surface maison 118 à 137 m2

Maison Stéphanie vous propose cette maison avec des finitions supplémentaire en parements extérieurs et lucarnes en pierre pour un style tourangeau.
Son aménagement intérieur personnalisable la rend unique et adaptée à votre mode de vie.
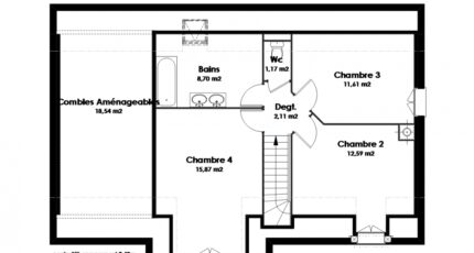
Possibilité d'avoir jusqu'à 5 chambres, grâce à ses combles aménageables au dessus de garage.
Vous trouverez au RDC une chambre, une cuisine ouverte sur salon-séjour, une salle d'eau, un WC et un garage intégré.
A l'étage, 3 chambres et une salle de bain complète la maison.

Construire ce modèle ?

    * Champs obligatoires

    Vos informations sont traitées par HEXAOM et transmises à un conseiller commercial qui vous contactera afin de répondre à votre demande. Les plans et images présentés sur notre site sont la propriété d’HEXAOM et ne peuvent pas être reproduits sans son accord. Pour retrouver notre politique de protection des données personnelles et exercer vos droits conformément à la « loi informatique et liberté » cliquez-ici.