Maison Traditionnelle - Tradi3

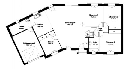
Plan maison 6 pièces 3 chambres Surface maison 110 à 160 m2

Maison Stéphanie vous propose un modèle en L pour une originalité et un agencement optimal de la maison.
Elle est conçue en petite tuile de pays et faîtage à nuds de mortier, son intérieur est modulable et sa configuration vous permet de scinder la partie nuit de la partie vie.
Elle vous offre trois chambres, un bureau, un beau salon-séjour avec cuisine ouverte et un garage intégré.
Cette même maison est représentée en version petite tuiles de pays sous la référence Tradi2.

Construire ce modèle ?

    * Champs obligatoires

    Vos informations sont traitées par HEXAOM et transmises à un conseiller commercial qui vous contactera afin de répondre à votre demande. Les plans et images présentés sur notre site sont la propriété d’HEXAOM et ne peuvent pas être reproduits sans son accord. Pour retrouver notre politique de protection des données personnelles et exercer vos droits conformément à la « loi informatique et liberté » cliquez-ici.