Maison Traditionnelle - Tradi1

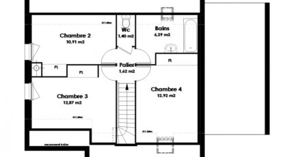
Plan maison 5 pièces 4 chambres Surface maison 106 m2

Les architectes de Maison Stéphanie ont pensé à une maison fonctionnelle, lumineuse et contemporaine, entièrement personnalisable.
Cette belle maison vous offre la possibilité d'avoir 4 chambres dont 1 suite parentale.
Elle vous propose un garage intégré.

Bienvenue chez vous !

Construire ce modèle ?

    * Champs obligatoires

    Vos informations sont traitées par HEXAOM et transmises à un conseiller commercial qui vous contactera afin de répondre à votre demande. Les plans et images présentés sur notre site sont la propriété d’HEXAOM et ne peuvent pas être reproduits sans son accord. Pour retrouver notre politique de protection des données personnelles et exercer vos droits conformément à la « loi informatique et liberté » cliquez-ici.