Maison Tendance - Trendy4

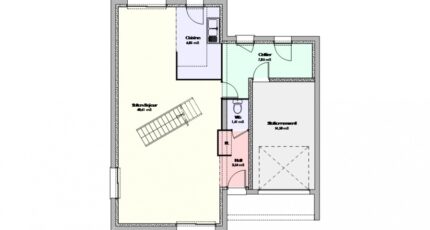
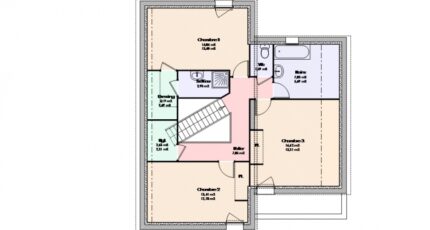
Plan maison Surface maison 117 m2

Nous vous proposons une maison RT 2012 au design moderne et atypique, avec un toit en zinc et des coloris muraux magnifiques.

Le salon-séjour de 40 m² est bien pensé pour l'agencement de votre espace, de plus, plusieurs baies vitrées donne un aspect lumineux et chaleureux à votre espace de vie.

La cuisine est à demi ouverte sur le salon séjour pour un effet de volume conséquent.

Vous trouverez également un garage intégré.

Pour le côté « nuit », trois chambres spacieuses de 13 m² à 14 m² ainsi qu'une suite parentale (dressing, salle d'eau douche à l'italienne) de 18 m² vous attendent.

N'attendez plus !

Construire ce modèle ?

    * Champs obligatoires

    Vos informations sont traitées par HEXAOM et transmises à un conseiller commercial qui vous contactera afin de répondre à votre demande. Les plans et images présentés sur notre site sont la propriété d’HEXAOM et ne peuvent pas être reproduits sans son accord. Pour retrouver notre politique de protection des données personnelles et exercer vos droits conformément à la « loi informatique et liberté » cliquez-ici.