Maison Tendance - Trendy3

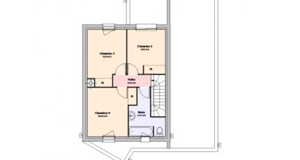
Plan maison 8 pièces Surface maison 90 m2

Maison moderne dans un style architecte, elle répond aux besoins d'une vie de famille dans un cadre moderne où l'espace permet à chacun de s'y épanouir.

Construire ce modèle ?

    * Champs obligatoires

    Vos informations sont traitées par HEXAOM et transmises à un conseiller commercial qui vous contactera afin de répondre à votre demande. Les plans et images présentés sur notre site sont la propriété d’HEXAOM et ne peuvent pas être reproduits sans son accord. Pour retrouver notre politique de protection des données personnelles et exercer vos droits conformément à la « loi informatique et liberté » cliquez-ici.