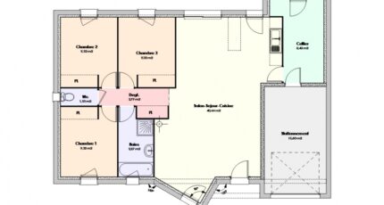
Maison Tendance - Trendy2 Plan maison 5 pièces Surface maison 86 m2 Voir les plans Cette maison au style répond aux exigences actuelles en matière de design et d'aménagement. De plain pied, elle possède tous les atouts pour une vie familiale conviviale s'inscrivant dans la durée. Agrandir l'image… Agrandir l'image… Afficher Maison Tendance - Trendy2 Maisons Stéphanie Afficher Maison Tendance - Trendy2 Maisons Stéphanie Construire ce modèle ? Prénom : * Nom : * Téléphone :* Votre adresse électronique :* Département de construction * :* Département de votre projet37 - Indre-et-Loire41 - Loir-et-Cher86 - Vienne Votre message Bonjour, Je souhaite avoir plus d'informations sur ce modèle de maison. Cordialement. * Champs obligatoires Vos informations sont traitées par HEXAOM et transmises à un conseiller commercial qui vous contactera afin de répondre à votre demande. Lire la suiteLes plans et images présentés sur notre site sont la propriété d’HEXAOM et ne peuvent pas être reproduits sans son accord. Pour retrouver notre politique de protection des données personnelles et exercer vos droits conformément à la « loi informatique et liberté » cliquez-ici. Fermer le formulaire de contact Retour aux modèles de maisons Afficher les images en plein écran