Maison Contemporaine - Archi9

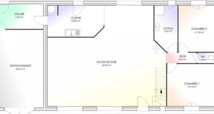
Plan maison 3 pièces 2 chambres Surface maison 111 m2

Séduisante maison de type longère en tuiles.
Toute de plain pied, elle est composée de deux chambres et d'un grand salon-séjour avec de grandes baies vitrées.
Dans une optique de confort et d'agrandissement, les combles sont entièrement aménageables.
Garage intégré.

Construire ce modèle ?

    * Champs obligatoires

    Vos informations sont traitées par HEXAOM et transmises à un conseiller commercial qui vous contactera afin de répondre à votre demande. Les plans et images présentés sur notre site sont la propriété d’HEXAOM et ne peuvent pas être reproduits sans son accord. Pour retrouver notre politique de protection des données personnelles et exercer vos droits conformément à la « loi informatique et liberté » cliquez-ici.