Maison neuve à
Saint-Cyr-sur-Loire (37540) Référence : TD2331625_3

Prix du projet : Maison avec Terrain

prix 608 900 €

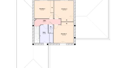
  • 6 pièces
  • 5 chambres
  • Surface maison 162 m2

OPPORTUNITE A SAISIR !

Très beau terrain à bâtir, idéalement situé dans un quartier agréable et recherché.
Proche de toutes commodités : écoles, commerces et professionnels de santé

Notre équipe vous accompagne dans toutes les étapes de votre projet et se tient à votre disposition pour vous présenter ce terrain et étudier ensemble votre future maison.

Ce terrain vous plaît ?

📞 Contactez dès maintenant votre conseillère Tiphanie DUMOND des Maisons Stéphanie pour plus d'informations ou pour planifier une visite.

*2.47.48.09.30

N'attendez plus pour démarrer votre projet de construction, rencontrons-nous !

Mentions légales

Terrain proposé par un partenaire foncier selon disponibilités et autorisation de publicité au prix de 314 000 €. Hors droit d'enregistrement et frais de notaire. Maison proposée, avec un contrat de construction de maison individuelle, dans le cadre de la loi du 19/12/1990, au prix de 294 900 € (Hors branchements et raccordements, papiers peints, peintures, revêtement de sol dans les chambres, qui sont chiffrés dans les travaux qui restent à charge du client. Tarif modifiable sans préavis). Étiquette énergie : A. Différents modèles disponibles pour ce terrain. Assurances et garanties du constructeur comprises (RC professionnelle, décennale, dommage ouvrage).

Contactez l'agence de Saint-Avertin

02 47 48 09 30

    * Champs obligatoires

    Vos informations sont traitées par HEXAOM et transmises à un conseiller commercial qui vous contactera afin de répondre à votre demande. Les plans et images présentés sur notre site sont la propriété d’HEXAOM et ne peuvent pas être reproduits sans son accord. Pour retrouver notre politique de protection des données personnelles et exercer vos droits conformément à la « loi informatique et liberté » cliquez-ici.