Maison neuve à
Cheillé (37190) Référence : TD2331113_4

Prix du projet : Maison avec Terrain

prix 378 900 €

  • 6 pièces
  • 5 chambres
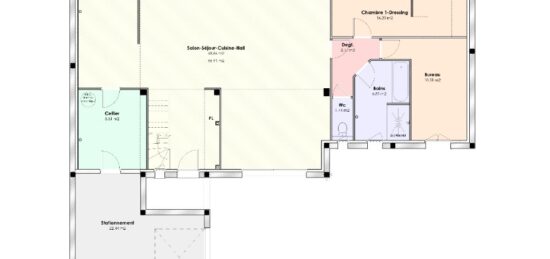
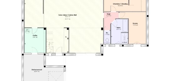
  • Surface maison 162 m2

OPPORTUNITE A SAISIR - DEVENEZ PROPRIÉTAIRE DE VOTRE MAISON SUR-MESURE

Découvrez cette demeure conçue et bâtie avec tout le savoir-faire des Maisons de Stéphanie, constructeur reconnu pour ses 30 années d'expérience et son exigence de qualité.
Chaque détail est pensé pour votre confort et vos envies : une architecture élégante, des espaces lumineux et fonctionnels, et la possibilité d'adapter les plans selon votre mode de vie.

Saisissez dès maintenant l'opportunité de faire de cette maison votre nouveau lieu de vie !

📞 Contactez dès maintenant votre conseillère Tiphanie DUMOND des Maisons Stéphanie pour plus d'informations ou pour planifier une visite.

*2.47.48.09.30

N'attendez plus pour démarrer votre projet de construction, rencontrons-nous !

Mentions légales

Terrain proposé par un partenaire foncier selon disponibilités et autorisation de publicité au prix de 77 000 €. Hors droit d'enregistrement et frais de notaire. Maison proposée, avec un contrat de construction de maison individuelle, dans le cadre de la loi du 19/12/1990, au prix de 301 900 € (Hors branchements et raccordements, papiers peints, peintures, revêtement de sol dans les chambres, qui sont chiffrés dans les travaux qui restent à charge du client. Tarif modifiable sans préavis). Étiquette énergie : A. Différents modèles disponibles pour ce terrain. Assurances et garanties du constructeur comprises (RC professionnelle, décennale, dommage ouvrage).

Contactez l'agence de Saint-Avertin

02 47 48 09 30

    * Champs obligatoires

    Vos informations sont traitées par HEXAOM et transmises à un conseiller commercial qui vous contactera afin de répondre à votre demande. Les plans et images présentés sur notre site sont la propriété d’HEXAOM et ne peuvent pas être reproduits sans son accord. Pour retrouver notre politique de protection des données personnelles et exercer vos droits conformément à la « loi informatique et liberté » cliquez-ici.